Room in shared accommodation
Description
DOUBLE BEDROOM AVAILABE IN A HIGH SPEC HMO - FLEXIBLE TERM OF BETWEEN 9 AND 12 MONTHS AVAILABLE - A furnished double bedroom avaiallbe in this smart and well presented six bedroom student house situated in Fishponds and within easy reach of UWE Glenside and Frenchay campuses.
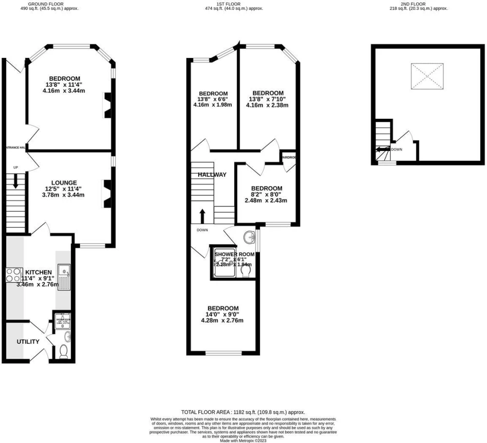
The accommodation comprises an entrance hall, a double bedroom, a sitting room, a modern fitted kitchen, a utility room and a shower room to to the ground floor.
On the first floor there are four double bedrooms and a shower room. On the top floor of the property there is a large double bedroom.
To the outside the property benefits from a private rear garden. The asking rent is £650 per month with all bills included. WIFI is also included within the rent.
The room is available on 1st September 2025, for a flexible term of between 9 and 12 months. Viewings are highly recommended!
Floorplans

About room/s
- Property type
- House
- No. of total bedrooms
- 1
- No. of offered bedrooms
- 1
- Room types
- Double
- No. of bathrooms
- 2
- Living room
- Yes
- Furnished
- Yes
Costs and terms
- Rental cost
-
£650 pcm
£150 pw - Bills included?
- No
- Security deposit
- £750
- Available from
- Now
- Minimum term
- No minimum
- Maximum term
- No maximum
- Allow short term stay?
- No
New tenant/s
- References required?
- Yes
- Age
- No preference
- Gender
- No preference
- Occupation
- No preference
- Sexual orientation
- No preference
- Food preferences
- No preference
Energy Performance Certificates
Map location
Similar properties
View allDisclaimer - Property reference 338212. The details and information displayed on this page for this property comprises a property advertisement provided by Kendall Harper. krispyhouse.com does not warrant or accept any responsibility for the accuracy or completeness of the property descriptions or any linked or related information provided here and they do not constitute property particulars, and krispyhouse.com has no control over the content. Please contact the advertiser for full details and further information.
STAYING SAFE ONLINE:
While most people genuinely aim to assist you in finding your next home, despite our best efforts there will unfortunately always be a small number of fraudsters attempting to deceive you into sharing personal information or handing over money. We strongly advise that you always view a property in person before making any payments, particularly if the advert is from a private individual. If visiting the property isn’t possible, consider asking someone you trust to view it on your behalf. Be cautious, as fraudsters often create a sense of urgency, claiming you need to transfer money to secure a property or book a viewing.













