6 bed house to rent
Description
STUDENT PROPERTY 2025-26
RENT+BILLS INCLUSIVE: Gas, Electricity, Water, TV License and Broadband.
Accepting small groups or Individuals
!! 1 rooms left to rent !!
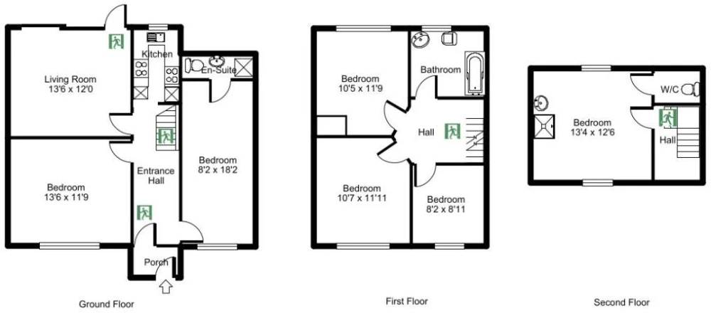
SIX BEDROOM HOUSE conveniently situated near UKC. This house had a a new kitchen in 2022 and redecoration in white throughout/day
ight blinds
ew carpets. The property comprises two large ground floor bedrooms, three first first floor bedrooms and one second floor bedroom, featuring two en suites, double beds in all bedrooms, modern matching bedroom furniture suites, first floor bathroom, a fitted double kitchen with two hobs, two hoods, two fridge-freezers, oven, one sink, one dishwasher and a washer-dryer, living room with comfy sofas from which to watch the large flat screen TV and tiered garden to rear of house.
The property benefits from its proximity to UKC and local shops, gas central heating, double glazing, regular buses to town centre and UKC and driveway.
Holding Deposit: Equivalent to 1 Week`s Rent.
DEPOSIT- £185.00 per person
Room 1- £119.00pw - Reserved
Room 2- £126.00pw (full ensuite) - Reserved
Room 3- £106.00pw
Room 4- £115.00pw Reserved
Room 5- £121.00pw - Reserved
Room 6- £131.00pw (shower ensuite) - Reserved
Half Rent July and August- no access during this time
Photographs taken August 2022
Energy Efficiency Rating- 67 Environment Impact (CO2) Rating- 60
N.B. Please note that photographs are taken using a wide angle lens which means that rooms may appear larger.
Key Features
Floorplans

About property
- Property type
- House
- No. of offered bedrooms
- 6
- Room types
- Double
- No. of bathrooms
- 3
- Living room
- Yes
- Furnished
- Yes
Costs and terms
- Rental cost
-
£459 pcm
£106 pw - Bills included?
- No
- Security deposit
- £185
- Available from
- Now
- Minimum term
- No minimum
- Maximum term
- No maximum
- Allow short term stay?
- No
New tenant/s
- References required?
- Yes
- Occupation
- No preference
Energy Performance Certificates
Map location
Similar properties
View allDisclaimer - Property reference 331963. The details and information displayed on this page for this property comprises a property advertisement provided by Leydon Lettings. krispyhouse.com does not warrant or accept any responsibility for the accuracy or completeness of the property descriptions or any linked or related information provided here and they do not constitute property particulars, and krispyhouse.com has no control over the content. Please contact the advertiser for full details and further information.
STAYING SAFE ONLINE:
While most people genuinely aim to assist you in finding your next home, despite our best efforts there will unfortunately always be a small number of fraudsters attempting to deceive you into sharing personal information or handing over money. We strongly advise that you always view a property in person before making any payments, particularly if the advert is from a private individual. If visiting the property isn’t possible, consider asking someone you trust to view it on your behalf. Be cautious, as fraudsters often create a sense of urgency, claiming you need to transfer money to secure a property or book a viewing.





























