3 bed flat to rent
Description
This stunning three bedroom apartment with polished concrete floors and terrace is situated on the first floor of this mews property in this quiet Marylebone location close to the heart of the village.
This beautiful three bedroom apartment located on the first floor with a luxurious living area, polished concrete floors, exposed brick walls and a planted paved terrace with views across the mews is ideally located for all that Marylebone Village has to offer.
This apartment has underfloor heating throughout, a dedicated concierge and a twice weekly housekeeper. All bills are included and the apartment is available to rent on a short or long term let basis.
Please note that rates will vary depending on the length of term and the dates of occupancy.
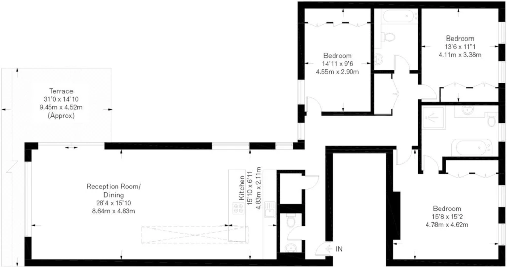
Floorplans

About property
- Property type
- Flat
- Property size
- 1478 ft²
- No. of offered bedrooms
- 3
- Room types
- Double
- No. of bathrooms
- 3
- Living room
- Yes
- Furnished
- Yes
Costs and terms
- Rental cost
-
£29,445 pcm
£6,795 pw - Bills included?
- No
- Security deposit
- £0
- Available from
- Now
- Minimum term
- 1 Month
- Maximum term
- No maximum
- Allow short term stay?
- No
New tenant/s
- References required?
- Yes
- Occupation
- No preference
Energy Performance Certificates
Map location
Similar properties
View allDisclaimer - Property reference 73953. The details and information displayed on this page for this property comprises a property advertisement provided by Oliver Bernard Private. krispyhouse.com does not warrant or accept any responsibility for the accuracy or completeness of the property descriptions or any linked or related information provided here and they do not constitute property particulars, and krispyhouse.com has no control over the content. Please contact the advertiser for full details and further information.
STAYING SAFE ONLINE:
While most people genuinely aim to assist you in finding your next home, despite our best efforts there will unfortunately always be a small number of fraudsters attempting to deceive you into sharing personal information or handing over money. We strongly advise that you always view a property in person before making any payments, particularly if the advert is from a private individual. If visiting the property isn’t possible, consider asking someone you trust to view it on your behalf. Be cautious, as fraudsters often create a sense of urgency, claiming you need to transfer money to secure a property or book a viewing.


























