


2 bed flat to rent
Description
A fabulous garden apartment set within a beautifully maintained period conversion, just a short walk from Portobello Road and Notting Hill Gate, featuring an exceptional private rear garden.
This stunning two bedroom home is perfectly positioned in prime Notting Hill, offering modern finishes in a highly desirable location. The bedrooms include excellent built-in wardrobes, while the open-plan living area features a stylish kitchen with a breakfast bar ideal for both relaxing and entertaining. A sleek contemporary bathroom, dedicated utility room, and tasteful wood flooring enhance the sense of quality throughout. The apartment is offered with elegant furnishings, ample storage, and a truly impressive, expansive private garden perfect for outdoor dining or simply unwinding.
Pembridge Villas is one of Notting Hill’s most sought-after addresses, ideally located for the boutiques, cafés, and restaurants of Westbourne Grove and iconic Portobello Road. Excellent transport links are nearby at Notting Hill Gate Underground Station (Central, District, and Circle Lines), offering easy access across London.
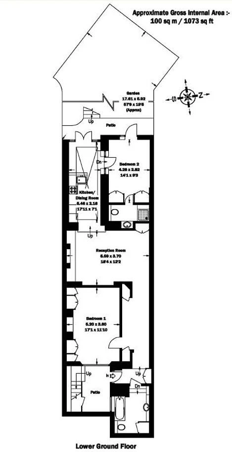
Floorplans

About property
- Property type
- Flat
- No. of offered bedrooms
- 2
- Room types
- Double
- No. of bathrooms
- 2
- Living room
- Yes
- Furnished
- No
Costs and terms
- Rental cost
-
£6,283 pcm
£1,450 pw - Bills included?
- No
- Security deposit
- £0
- Available from
- Now
- Minimum term
- No minimum
- Maximum term
- No maximum
- Allow short term stay?
- No
New tenant/s
- References required?
- Yes
- Occupation
- No preference
Map location
Similar properties
View allDisclaimer - Property reference 339857. The details and information displayed on this page for this property comprises a property advertisement provided by Mercier Gray. krispyhouse.com does not warrant or accept any responsibility for the accuracy or completeness of the property descriptions or any linked or related information provided here and they do not constitute property particulars, and krispyhouse.com has no control over the content. Please contact the advertiser for full details and further information.
STAYING SAFE ONLINE:
While most people genuinely aim to assist you in finding your next home, despite our best efforts there will unfortunately always be a small number of fraudsters attempting to deceive you into sharing personal information or handing over money. We strongly advise that you always view a property in person before making any payments, particularly if the advert is from a private individual. If visiting the property isn’t possible, consider asking someone you trust to view it on your behalf. Be cautious, as fraudsters often create a sense of urgency, claiming you need to transfer money to secure a property or book a viewing.