2 bed flat to rent
Description
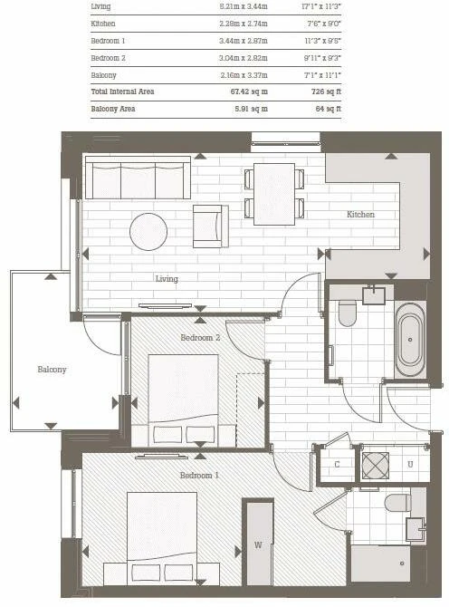
Available to move into Mid November is this fifth floor furnished two double bedroom apartment in the popular St. James Smithfield Square development. Within 15 minutes walk to Hornsey Station, walking distance to local amenities. The development benefits from residents facilities including a concierge service, meeting room with free Wi-Fi and a fully equipped gym exclusively for residents use. Cycle storage is provided Gym onsite concierge.
Spencer James Residential is an independent estate agency established in 2002 specialising in all aspects of residential lettings, sales and property management.
We're serious about the pivotal role we play between our landlords and tenants; buyers and sellers. Our clients are assured in the knowledge that we work under an approved code of practice, due to our memberships with recognised industry bodies including: the Association of Residential Lettings Agents (ARLA); the National Association of Estate Agents (NAEA); and the Property Ombudsman (Sales and Lettings).
Key Features
Floorplans

About property
- Property type
- Flat
- No. of offered bedrooms
- 2
- Room types
- Double
- No. of bathrooms
- 2
- Living room
- Yes
- Furnished
- Yes
Costs and terms
- Rental cost
-
£2,595 pcm
£599 pw - Bills included?
- No
- Security deposit
- £2,994
- Available from
- Now
- Minimum term
- No minimum
- Maximum term
- No maximum
- Allow short term stay?
- No
New tenant/s
- References required?
- Yes
- Occupation
- No preference
Map location
Similar properties
View allDisclaimer - Property reference 92662. The details and information displayed on this page for this property comprises a property advertisement provided by Spencer James Residential. krispyhouse.com does not warrant or accept any responsibility for the accuracy or completeness of the property descriptions or any linked or related information provided here and they do not constitute property particulars, and krispyhouse.com has no control over the content. Please contact the advertiser for full details and further information.
STAYING SAFE ONLINE:
While most people genuinely aim to assist you in finding your next home, despite our best efforts there will unfortunately always be a small number of fraudsters attempting to deceive you into sharing personal information or handing over money. We strongly advise that you always view a property in person before making any payments, particularly if the advert is from a private individual. If visiting the property isn’t possible, consider asking someone you trust to view it on your behalf. Be cautious, as fraudsters often create a sense of urgency, claiming you need to transfer money to secure a property or book a viewing.










