2 bed flat to rent
Description
Gated Parking space
Spacious open-plan living and kitchen area with contemporary furnishings
Modern fitted kitchen with integrated appliances
Two double bedrooms, both furnished to a high standard
Sleek bathroom with three-piece suite and overhead shower and one ensuite with the same amenities
Secure entry system and lift access
This apartment is ideal for young professionals, city commuters, or anyone looking to enjoy modern living in a fantastic location.
Location Highlights:
Minutes from Leeds Train Station
Easy access to the M621, M1 & M62
Close to Leeds Dock, Crown Point Retail Park, and the city’s business and shopping districts
This property is available with a Deposit Free option which means that instead of paying a traditional five weeks security deposit, you pay a fee of one weeks rent + VAT (subject to a minimum of £120 + VAT) to become a member of a deposit free renting scheme which significantly reduces the up-front costs. This fee is non-refundable and is not a deposit so cannot be used towards covering the cost of any future damage.
Key Features
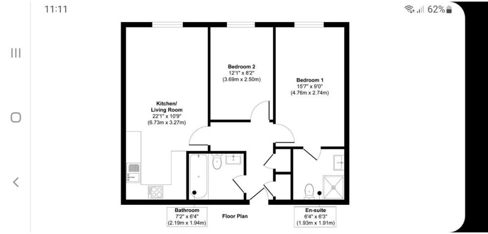
Floorplans

About property
- Property type
- Flat
- No. of offered bedrooms
- 2
- Room types
- Double
- No. of bathrooms
- 2
- Living room
- Yes
- Furnished
- No
Costs and terms
- Rental cost
-
£1,150 pcm
£265 pw - Bills included?
- No
- Security deposit
- £1,326
- Available from
- Now
- Minimum term
- No minimum
- Maximum term
- No maximum
- Allow short term stay?
- No
New tenant/s
- References required?
- Yes
- Occupation
- No preference
Energy Performance Certificates
Map location
Similar properties
View allDisclaimer - Property reference 324877. The details and information displayed on this page for this property comprises a property advertisement provided by haart, Leeds. krispyhouse.com does not warrant or accept any responsibility for the accuracy or completeness of the property descriptions or any linked or related information provided here and they do not constitute property particulars, and krispyhouse.com has no control over the content. Please contact the advertiser for full details and further information.
STAYING SAFE ONLINE:
While most people genuinely aim to assist you in finding your next home, despite our best efforts there will unfortunately always be a small number of fraudsters attempting to deceive you into sharing personal information or handing over money. We strongly advise that you always view a property in person before making any payments, particularly if the advert is from a private individual. If visiting the property isn’t possible, consider asking someone you trust to view it on your behalf. Be cautious, as fraudsters often create a sense of urgency, claiming you need to transfer money to secure a property or book a viewing.








