2 bed flat to rent
Description
Hyde Estates present this huge, two bedroom penthouse apartment to let, offering spacious well presented living accommodation throughout. Situated in a modern block with communal gardens and ample residents parking. Unfurnished and available now.
Excellent transport links with Blackrod train station within walking distance and easy access to the M61 for commuters.
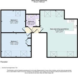
Accommodation - Comprising; entrance hall, large open plan living room with Velux windows to the modern fitted kitchen. The kitchen is fitted with a range of wall and base soft closing units, contrasting working surfaces and breakfast bar. Integral electric fan assisted oven and gas hob, free standing fridge freezer with plumbing for a washing machine. There are two large, carpeted bedrooms one of which benefits fitted wardrobes. The tiled bathroom includes a three piece suite of bath with over bath combi powered shower, glass shower screen, low level WC and washbasin on a pedestal base.
Room Measurements - Living room: 27`7" x 22` at extremes
Kitchen: 9`4" x 7`4"
Bedroom 1: 17`8" x 13`10"
Bedroom 2: 14`4" x 12`10"
Bathroom: 7`6" x 6`11"
Gardens - Tended communal gardens with ample communal parking.
Additional Information - The apartment benefits; Velux windows with black out blinds and gas central heating together with a secure door entry phone system.
Council Tax - Bolton Council, Band B.
Viewings - To be arranged via Hyde Estate & Letting Agents .
Disclaimer - The information and images provided in this property advertisement are intended for guidance purposes only. While we make every effort to ensure the accuracy of the details, we strongly recommend that interested parties view the property in person to confirm the property’s condition and suitability for their specific requirements.
Key Features
Floorplans

About property
- Property type
- Flat
- No. of offered bedrooms
- 2
- Room types
- Double
- No. of bathrooms
- 1
- Living room
- Yes
- Furnished
- No
Costs and terms
- Rental cost
-
£925 pcm
£213 pw - Bills included?
- No
- Security deposit
- £1,067
- Available from
- Now
- Minimum term
- No minimum
- Maximum term
- No maximum
- Allow short term stay?
- No
New tenant/s
- References required?
- Yes
- Occupation
- No preference
Energy Performance Certificates
Map location
Similar properties
View allDisclaimer - Property reference 315748. The details and information displayed on this page for this property comprises a property advertisement provided by Hyde Estate & Lettings Agents. krispyhouse.com does not warrant or accept any responsibility for the accuracy or completeness of the property descriptions or any linked or related information provided here and they do not constitute property particulars, and krispyhouse.com has no control over the content. Please contact the advertiser for full details and further information.
STAYING SAFE ONLINE:
While most people genuinely aim to assist you in finding your next home, despite our best efforts there will unfortunately always be a small number of fraudsters attempting to deceive you into sharing personal information or handing over money. We strongly advise that you always view a property in person before making any payments, particularly if the advert is from a private individual. If visiting the property isn’t possible, consider asking someone you trust to view it on your behalf. Be cautious, as fraudsters often create a sense of urgency, claiming you need to transfer money to secure a property or book a viewing.
















