1 bed flat to rent
Description
Great location - Wooden flooring - Furnished - Period features - Separate modern kitchen - En-suite Bathroom - Close to Kings Cross Station - Managed by LDG
A bright and spacious apartment in a sought after location in Bloomsbury. Benefiting from wooden flooring throughout, a good size reception room with plenty of natural light, a separate modern kitchen with built-in appliances, a master bedroom with en-suite bathroom and a guest WC.
Britannia Street boasts excellent transport links, within walking distance to Kings Cross and St Pancras International, with multiple tube lines and bus routes nearby. Nearby Angel offers shops, restaurants, and bars and Bloomsbury's academic institutions are just a 10-minute walk away.
Key Features
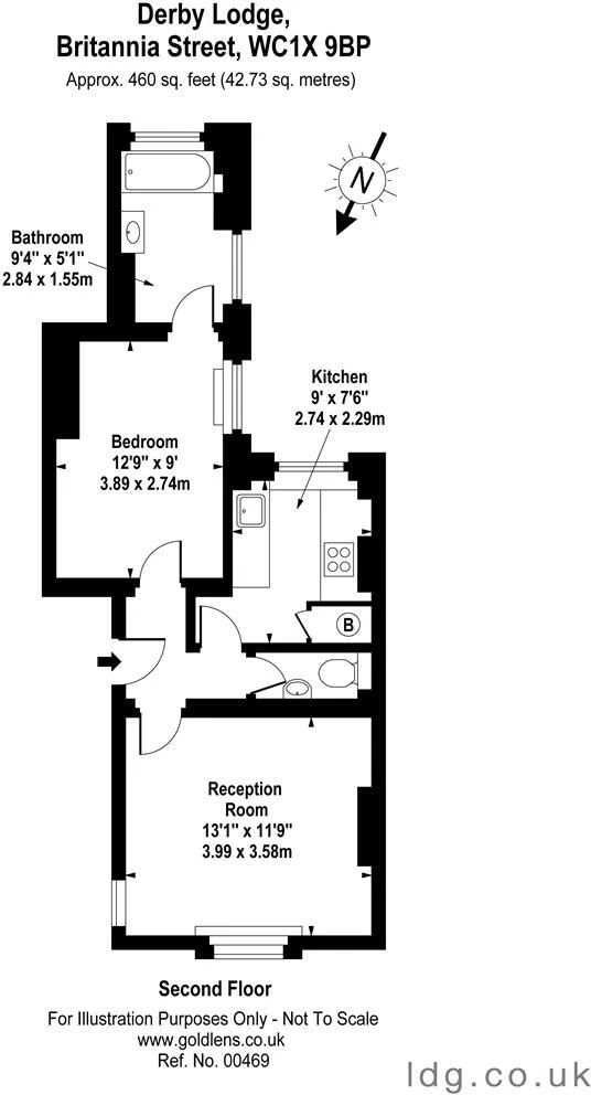
Floorplans

About property
- Property type
- Flat
- Property size
- 460 ft²
- No. of offered bedrooms
- 1
- Room types
- Double
- No. of bathrooms
- 1
- Living room
- Yes
- Furnished
- Yes
Costs and terms
- Rental cost
-
£2,297 pcm
£530 pw - Bills included?
- No
- Security deposit
- £2,650
- Available from
- 12/09/2026
- Minimum term
- 1 Year
- Maximum term
- No maximum
- Allow short term stay?
- No
New tenant/s
- References required?
- Yes
- Occupation
- No preference
Energy Performance Certificates
Map location
Similar properties
View allDisclaimer - Property reference 342213. The details and information displayed on this page for this property comprises a property advertisement provided by LDG. krispyhouse.com does not warrant or accept any responsibility for the accuracy or completeness of the property descriptions or any linked or related information provided here and they do not constitute property particulars, and krispyhouse.com has no control over the content. Please contact the advertiser for full details and further information.
STAYING SAFE ONLINE:
While most people genuinely aim to assist you in finding your next home, despite our best efforts there will unfortunately always be a small number of fraudsters attempting to deceive you into sharing personal information or handing over money. We strongly advise that you always view a property in person before making any payments, particularly if the advert is from a private individual. If visiting the property isn’t possible, consider asking someone you trust to view it on your behalf. Be cautious, as fraudsters often create a sense of urgency, claiming you need to transfer money to secure a property or book a viewing.








