5 bed flat to rent
Description
Druce are delighted to offer this luxury five bedroom triplex to the market. The property has been renovated to the most exquisite standards and there is simply nothing on the market like it.
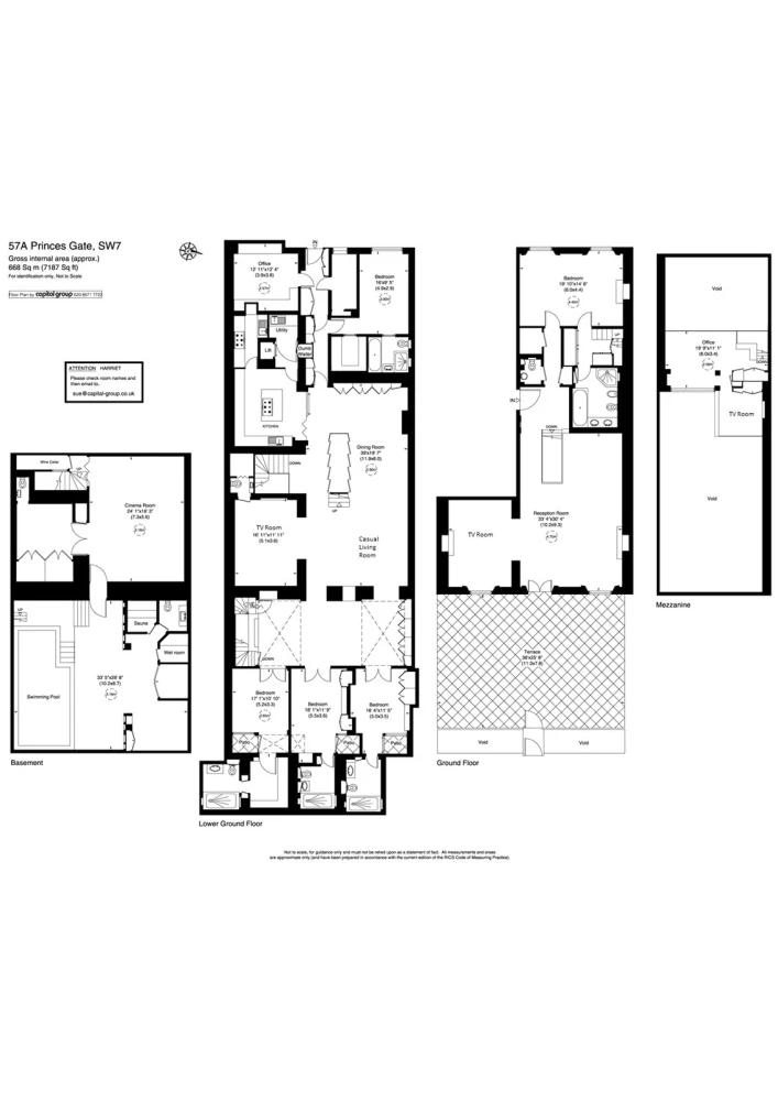
The finish this property has to offer is stunning. Benefitting from the original ceiling boarders, fire places, high ceilings, parquet flooring, chandeliers and state of the art furnishings. Further benefitting from five bedrooms, seven reception rooms, cinema room, private patio with direct access to a communal gardens, indoor swimming pool, sauna, lift, utility room, porter and is laid out over 7000 SQFT.
Princes Gate stands as one of Central London's most premium locations. Offering easy access to Knightsbridge, Mayfair, South Kensington, Chelsea and Kensington High Street there are an abundance of shops (including Harrods), restaurants, museums and much more on your doorstep.
Floorplans

About property
- Property type
- Flat
- Property size
- 7187 ft²
- No. of offered bedrooms
- 5
- Room types
- Double
- No. of bathrooms
- 5
- Living room
- Yes
- Furnished
- Yes
Costs and terms
- Rental cost
-
£97,500 pcm
£22,500 pw - Bills included?
- No
- Security deposit
- £0
- Available from
- Now
- Minimum term
- No minimum
- Maximum term
- No maximum
- Allow short term stay?
- Yes
New tenant/s
- References required?
- Yes
- Occupation
- No preference
Energy Performance Certificates
Map location
Similar properties
View allDisclaimer - Property reference 157438. The details and information displayed on this page for this property comprises a property advertisement provided by Druce | Kensington. krispyhouse.com does not warrant or accept any responsibility for the accuracy or completeness of the property descriptions or any linked or related information provided here and they do not constitute property particulars, and krispyhouse.com has no control over the content. Please contact the advertiser for full details and further information.
STAYING SAFE ONLINE:
While most people genuinely aim to assist you in finding your next home, despite our best efforts there will unfortunately always be a small number of fraudsters attempting to deceive you into sharing personal information or handing over money. We strongly advise that you always view a property in person before making any payments, particularly if the advert is from a private individual. If visiting the property isn’t possible, consider asking someone you trust to view it on your behalf. Be cautious, as fraudsters often create a sense of urgency, claiming you need to transfer money to secure a property or book a viewing.















