


4 bed house to rent
Description
This beautifully extended semi-detached home offers generous living space with four spacious double bedrooms, making it perfect for families or anyone in need of extra room.
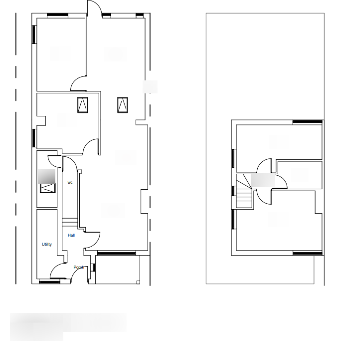
The ground floor welcomes you with a well-proportioned reception room that seamlessly connects to the dining area, creating a versatile space ideal for entertaining or open-plan living. The thoughtfully extended kitchen is a true highlight — offering ample space for cooking and dining, it's sure to impress any home chef.
Also on the ground floor are two sizeable double bedrooms, providing flexible options for family, guests, or even a home office. A modern shower room, practical utility room, and a separate cloakroom add to the home's everyday convenience.
Set over two floors, the property offers a smart and functional layout. Upstairs, you'll find a luxurious master bedroom and an additional large double bedroom, both flooded with natural light. A contemporary family bathroom, complete with a sleek white suite, serves the first floor.
Outside, the property features a private driveway with space for at least two vehicles. The rear garden offers a well-maintained lawn — ideal for relaxing, entertaining, or children's play — along with a good-sized shed for extra storage.
With its spacious interiors, thoughtful extensions, and well-balanced layout, this home is ready to accommodate modern family life in comfort and style.
Key Features
About property
- Property type
- House
- Property size
- 1150 ft²
- No. of offered bedrooms
- 4
- Room types
- Double
- No. of bathrooms
- 2
- Living room
- Yes
- Furnished
- Yes
Costs and terms
- Rental cost
-
£2,500 pcm
£577 pw - Bills included?
- No
- Security deposit
- £2,884
- Available from
- 15/10/2025
- Minimum term
- 1 Year
- Maximum term
- No maximum
- Allow short term stay?
- No
New tenant/s
- References required?
- Yes
- Occupation
- No preference
Energy Performance Certificates

Map location
Similar properties
View allDisclaimer - Property reference 337813. The details and information displayed on this page for this property comprises a property advertisement provided by Hello Neighbour. krispyhouse.com does not warrant or accept any responsibility for the accuracy or completeness of the property descriptions or any linked or related information provided here and they do not constitute property particulars, and krispyhouse.com has no control over the content. Please contact the advertiser for full details and further information.
STAYING SAFE ONLINE:
While most people genuinely aim to assist you in finding your next home, despite our best efforts there will unfortunately always be a small number of fraudsters attempting to deceive you into sharing personal information or handing over money. We strongly advise that you always view a property in person before making any payments, particularly if the advert is from a private individual. If visiting the property isn’t possible, consider asking someone you trust to view it on your behalf. Be cautious, as fraudsters often create a sense of urgency, claiming you need to transfer money to secure a property or book a viewing.